Online KURZ:
PRAKTICKÝ RODINNÝ DOM
dispozičné SCHÉMY vzorové PÔDORYSY overené DETAILY
BONUSY
Praktický systém architektonického myslenia, kde architekt vysvetľuje schémy, pôdorysy a detaily tak, aby ste robili správne rozhodnutia ešte pred projektom a stavbou.
Určený pre budúcich stavebníkov a mladých architektov, projektantov, ktorí nechcú len projekt, ale chcú rozumieť logike priestoru, dispozičným riešeniam a detailom, prípadne systematicky rozvíjať svoje architektonické zručnosti.
Plný prístup ku kurzu majú členovia s členstvom MEMBER a PRO.
SCHÉMY
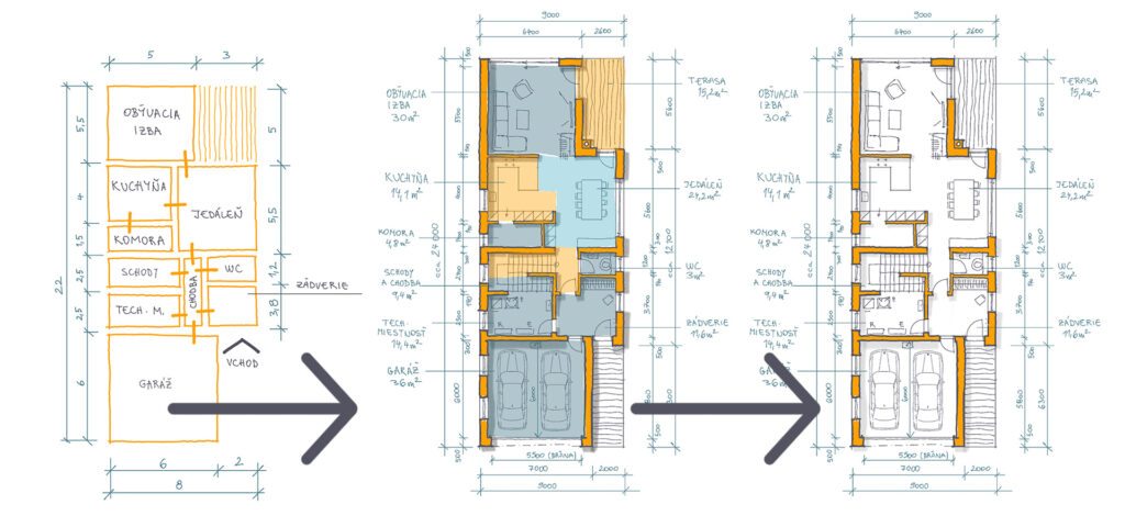
Predtým, ako začnete podrobne rozkresľovať pôdorys, je potrebné základné rozvrhnutie miestností v súvislosti s orientáciou na svetové strany, vstup na pozemok, výhľady a celkové logické prepojenie miestností v dome.
Tento pracovný systém označujeme ako Dispozičné schémy.
Aktuálne vás čaká 10 lekcií.
PÔDORYSY
V tomto module sú spracované všetky miestnosti, ktoré sa nachádzajú v štandardnom rodinnom dome.
Každá miestnosť pozostáva z 5 podkapitol:
- ideálne riešenia a zásady
- najčastejšie chyby
- typové pôdorysy (5+ vzorov)
- check list (na čo nezabudnúť)
- tipy a triky (creative boost)
DETAILY
Vybrali sme niekoľko detailov, ktoré sa nám v praxi osvedčili.
Detaily sú prebraté od dodávateľov a skombinované s predmetmi iných dodávateľov do unikátkych stavbármi odsúhlasených detailov.
BONUSY
Praktické informácie a pomôcky, ktoré nie sú zaraditeľné do predchádzajúcich modulov, ale sú veľmi užitočné.
Charakteristický rez domom, na ktorom sú zakótované výšky konštrukcií, stropov, schodisko, východy na terasu po 2 schodoch v porovnaní s bezbarierovým riešením.
Do tohto modulu pribúdajú lekcie podľa vašich skutočných architektonických problémov, ktoré vás trápia.
Podrobný obsah kurzu
ukážka kapitoly Schéma 04
MODUL SCHÉMY (dispozičné schémy) – OBSAH:
- schéma 01 – dvojpodlažný dom s hosťovskou izbou
- schéma 02 – dvojpodlažný dom bez hosťovskej izby
- schéma 03 – dvojpodlažný dom s garážou bez hosťovskej izby
- schéma 04 – dvojpodlažný dom s garážou a hosťovskou izbou (širší variant)
- schéma 05 – dvojpodlažný dom s garážou, hosťovskou izbou a oddelenou kuchyňou
- schéma 06 – dvojpodlažný dom s garážou a hosťovskou izbou (užší variant)
- schéma 07 – dvojpodlažný dom s dvojgarážou , oddeliteľnou kuchyňou, tech. zázemím v jednej časti a hosťovská izba
- schéma 08 – úzky dvojpodlažný dom, bez okien zo strán objektu a bez garáže
- schéma 09 – prízemný dom v 2 variantách vstupu a orientácie bez garáže
- schéma 10 – úzky dvojpodlažný dom s dvojgarážou bez hosťovskej miestnosti
- schéma 11 – úzky prízemný dom, variant so vstupom viditeľným z ulice a z boku
- schéma 12 – prízemný dom, vstup a všetky okná na čelnej fasáde
úvod do kapitoly
MODUL PÔDORYSY (vzorové dispozície) – OBSAH:
- schodisko
- vstupné zádverie
- hala
- detské izby
- spálňa
- hlavná spálňa (master bedroom so šatníkom a kúpeľňou)
- kuchyňa s komorou
- jedáleň
- obývacia izba
- kúpeľne a WC
- garáž
- technická miestnosť
- sklady
ukážka kapitoly – pripravujeme
MODUL DETAILY (vzorové detaily) – OBSAH:
- varianty zakladania stavieb
- varianty žalúziových kastlíkov
- varianty striech
- skladby podláh
ukážka kapitoly – pripravujeme
MODUL BONUSY – OBSAH:
- typický rez objektom – svetlé výšky, konštrukčné výšky, bezbariérová terasa sa 2. NP vs. 2 schody na terasu a mnoho ďalšieho
